Northwood Suites
- Developer:
- HCK Properties Sdn. Bhd.
- Facilities:
-
Swimming Pool
Badminton Court
Prayer Hall
Elevator
Gymnasium
BBQ Lounge
Parking
Multipurpose Hall - Location:
- Persiaran Bestari, Cyberjaya
- Project Progress:
- TBA
Launch Price RM552,000
Built Up 450 SQ. FT - 790 SQ. FT
Tenure Freehold
Total Storeys 25
Land Title Residential
Total Blocks 2
Total Units 448
Project Information
Northwood Suites (Phase 2A) is a 25-storey residential tower consisting of Service Suites equipped with a fully-fitted pantry as well as air conditioning units in all bedrooms and living room.
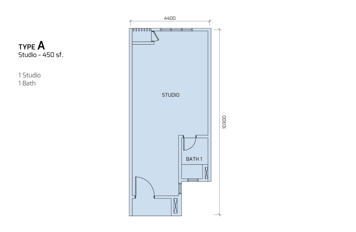
Type A: 1 Studio 1 Bath | 450 sq.ft
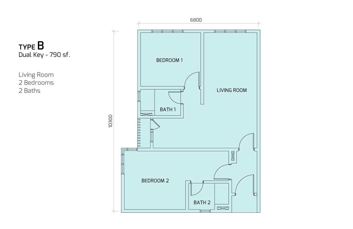
Type B: 2 Bedrooms 2 Baths | 790 sq.ft
Type C: 1 Studio 1 Bedroom 2 Baths | 790 sq.ft
Covington Suites & Foster Suites (Phase 2B) are 2 blocks of 18-storey Service Suites equipped with a fully-fitted pantry as well as air conditioning units in all bedrooms and living room.
Other expansive and lifestyle facilities include landscaped gardens, swimming pool, gymnasium, sports court, multipurpose hall and BBQ pit, among others. All these from Malaysia’s Top Developer of Education Cities.






